cena Mieszkania

568 716 PLN

cena za metr kw.

8 300 PLN

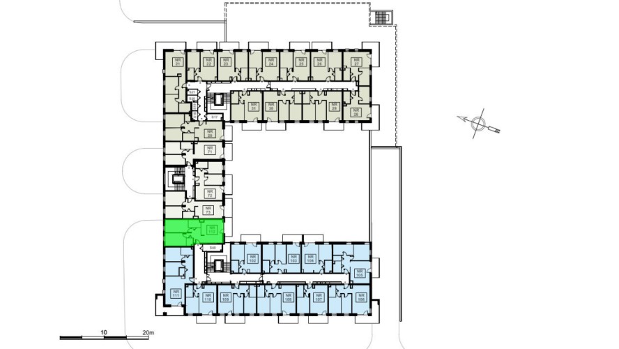
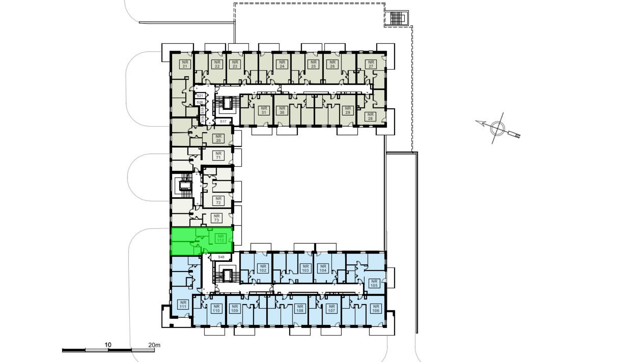
Budynek Ludowa C
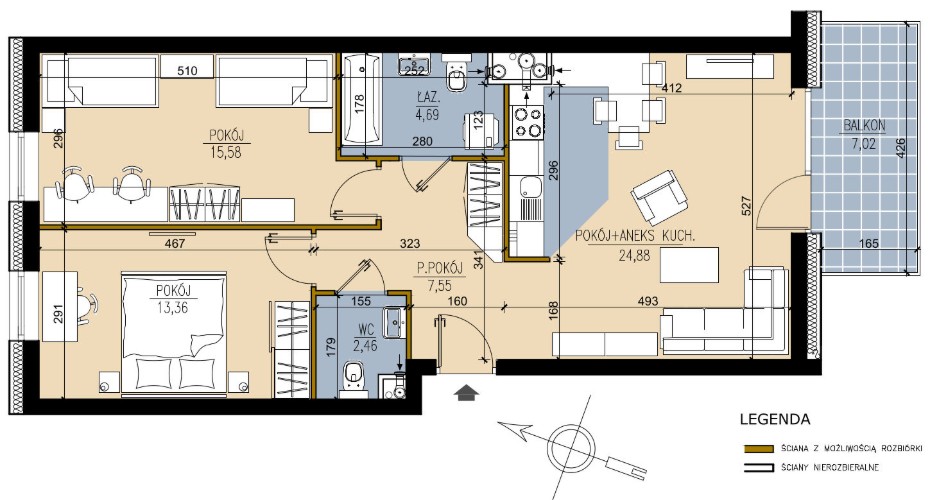
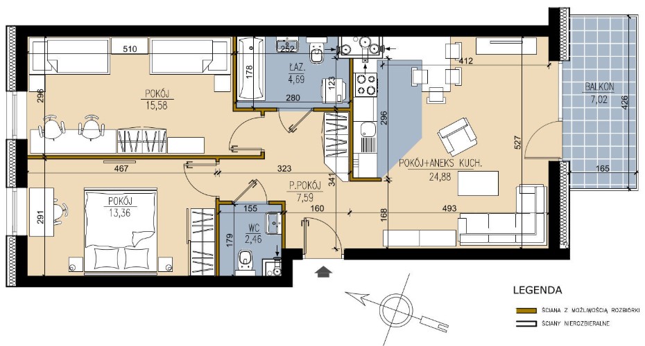
Powierzchnia 68,52 m2
Piętro 2 (Piętro II)
Pokoje 3
Całkowita cena brutto
568 716 PLN