cena Mieszkania

355 352 PLN

cena za metr kw.

8 600 PLN

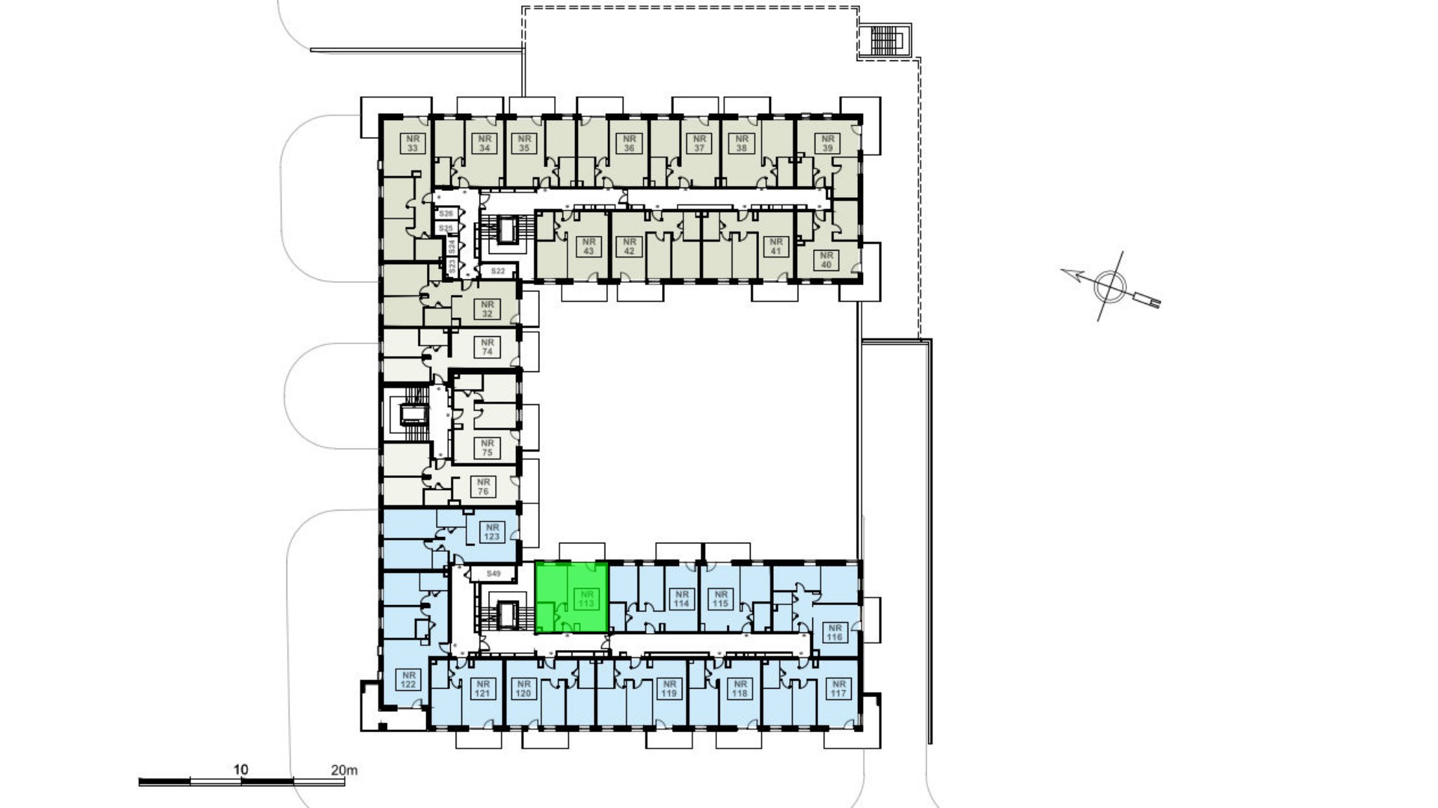
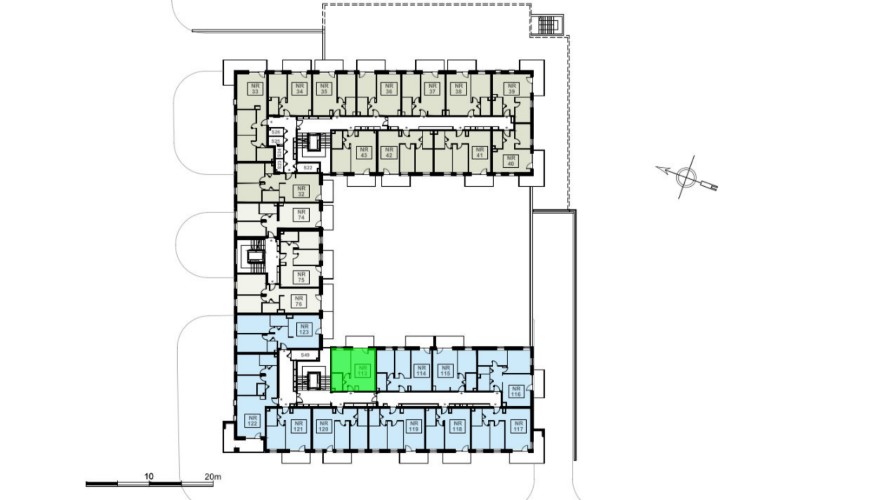
Budynek Ludowa C
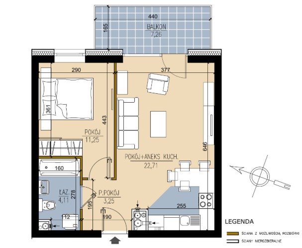
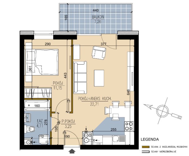
Powierzchnia 41,32 m2
Piętro 3 (Piętro III)
Pokoje 2
Całkowita cena brutto
355 352 PLN