cena Mieszkania

375 760 PLN

cena za metr kw.

8 800 PLN

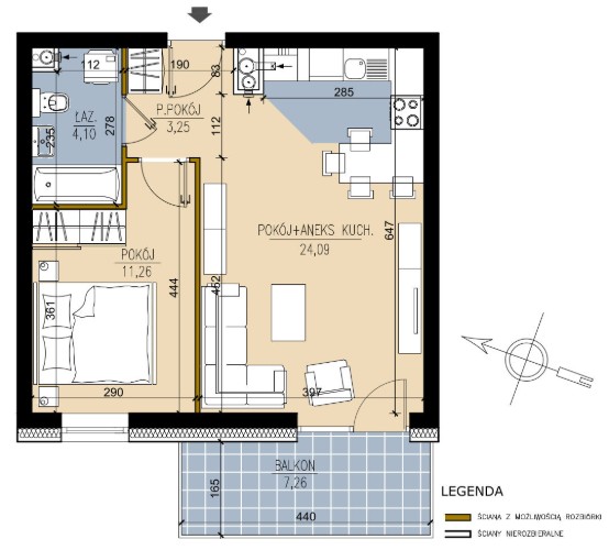
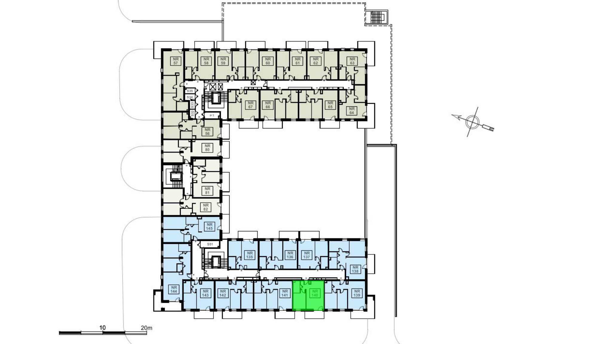
Budynek Ludowa C
Powierzchnia 42,70 m2
Piętro 5 (Piętro V)
Pokoje 2
Całkowita cena brutto
375 760 PLN