cena Mieszkania

360 093 PLN

cena za metr kw.

8 700 PLN

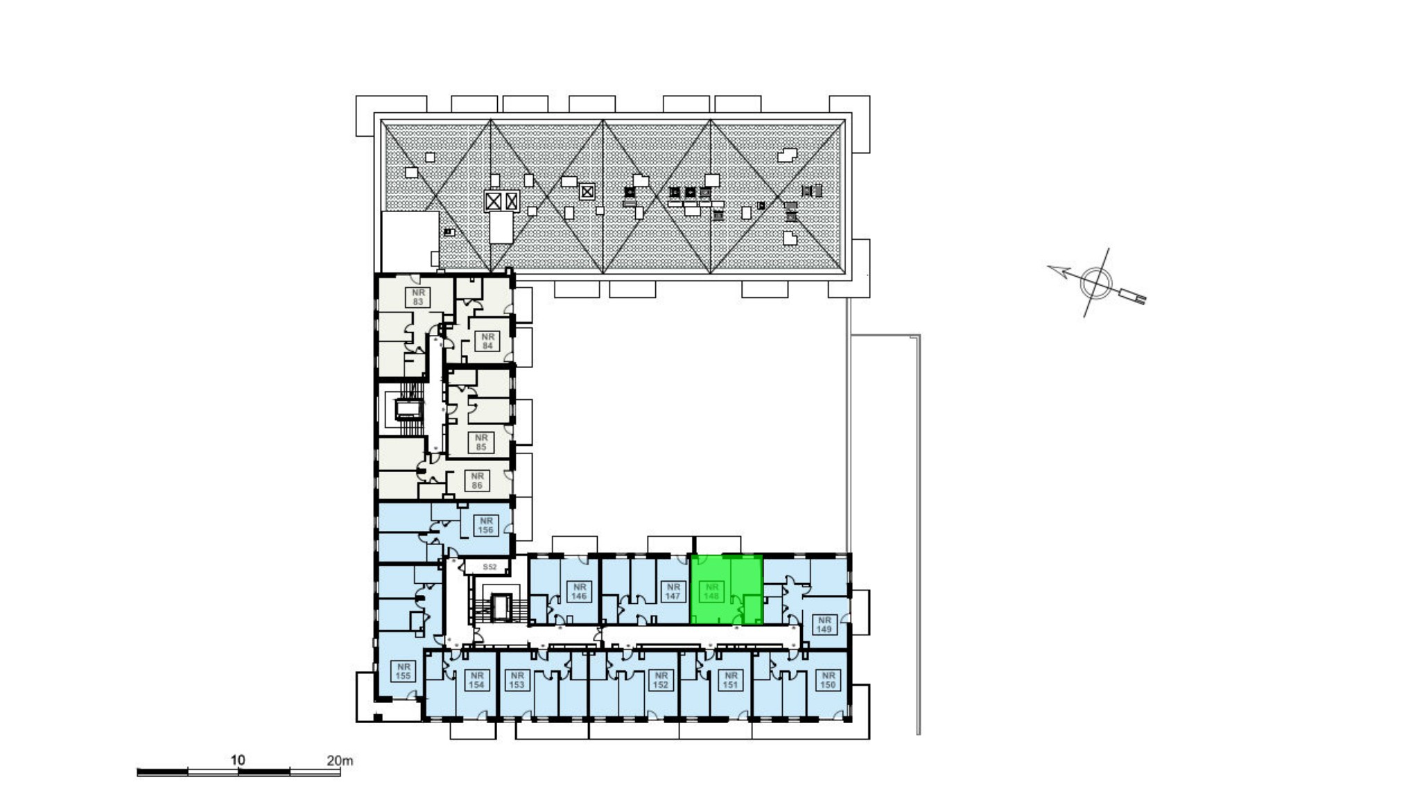
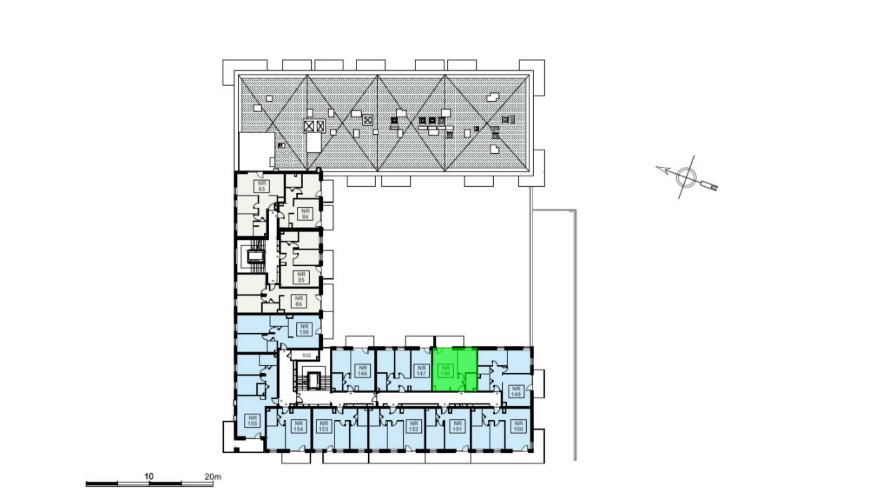
Budynek Ludowa C
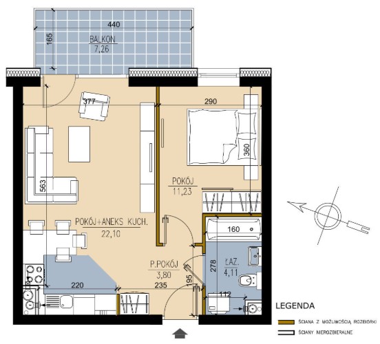
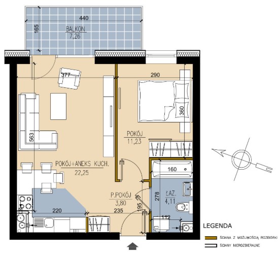
Powierzchnia 41,39 m2
Piętro 6 (Piętro VI)
Pokoje 2
Całkowita cena brutto
360 093 PLN