cena Mieszkania

462 910 PLN

cena za metr kw.

8 500 PLN

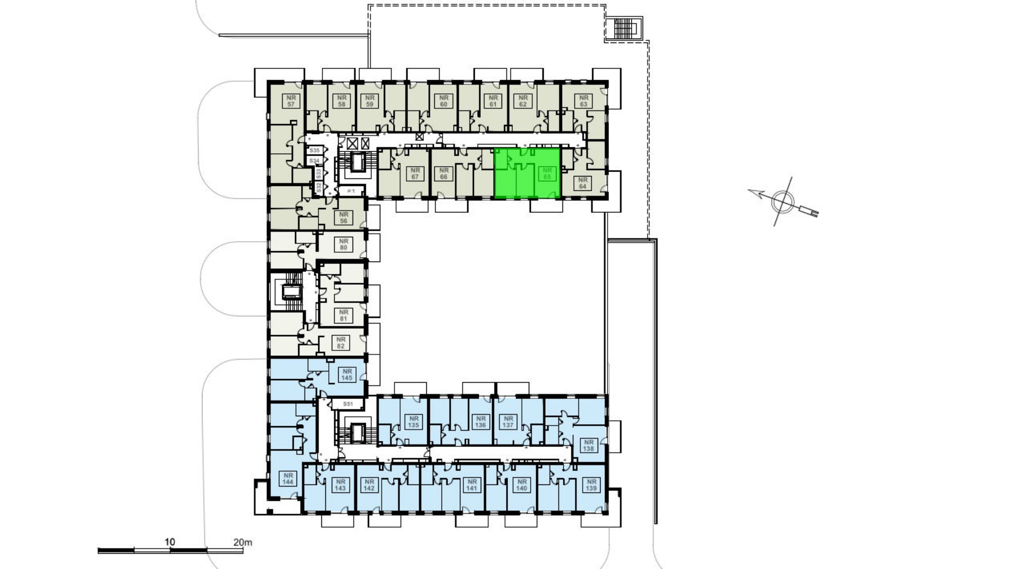
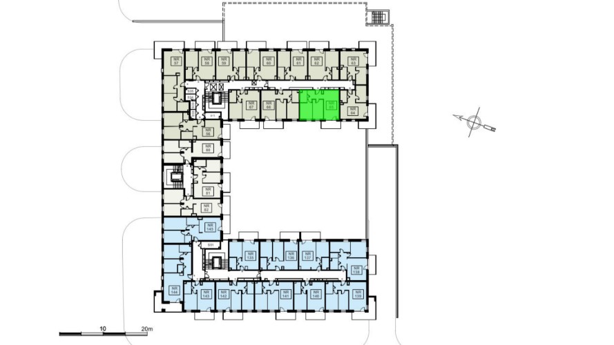
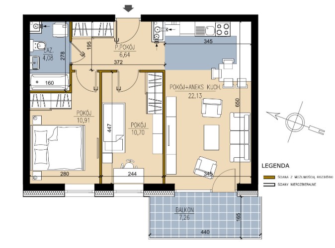
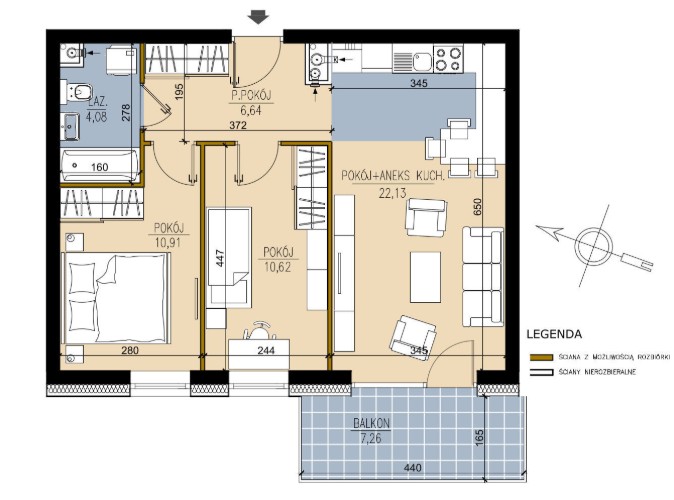
Budynek Ludowa C
Powierzchnia 54,46 m2
Piętro 5 (Piętro V)
Pokoje 3
Całkowita cena brutto
462 910 PLN