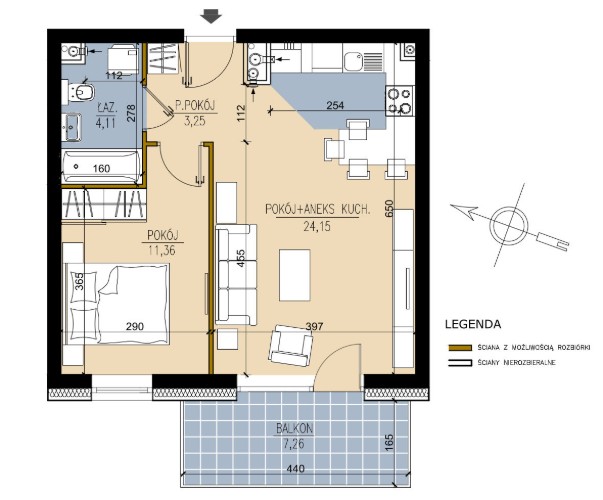
cena Mieszkania

372 969 PLN

cena za metr kw.

8 700 PLN

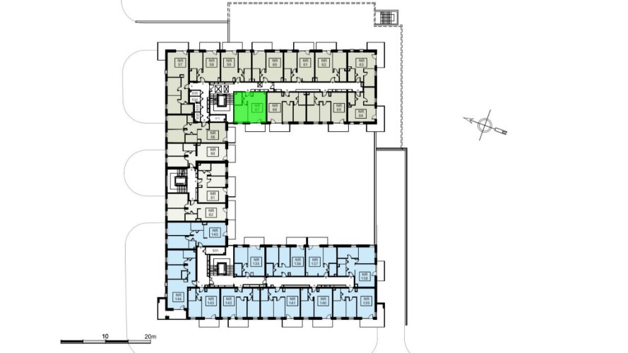
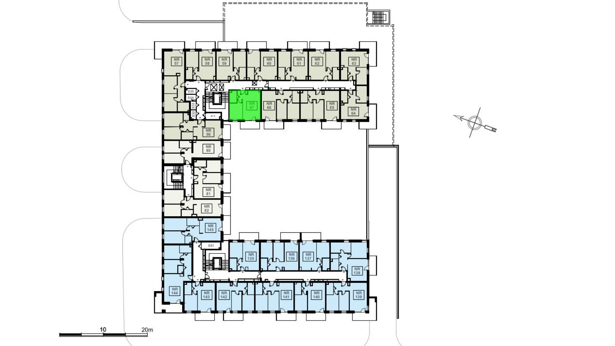
Budynek Ludowa C
Powierzchnia 42,87 m2
Piętro 5 (Piętro V)
Pokoje 2
Całkowita cena brutto
372 969 PLN