cena Mieszkania

550 750 PLN

cena za metr kw.

12 500 PLN

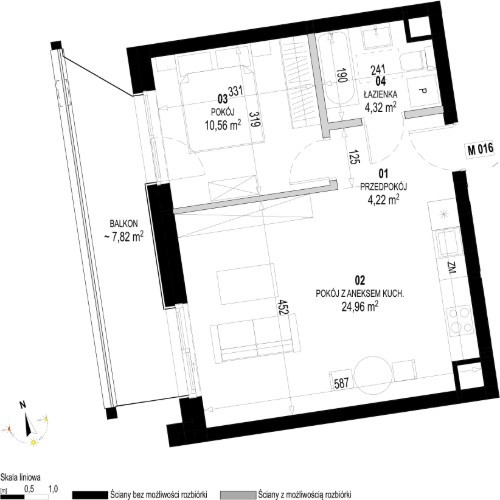
Budynek Św. Rocha Bud.1
Powierzchnia 44,06 m2
Piętro 3 (Piętro III)
Pokoje 2
Balkon ok. 7,82 m²
Całkowita cena brutto
550 750 PLN