cena Mieszkania

553 812 PLN

cena za metr kw.

11 400 PLN

Budynek Św. Rocha Bud.1
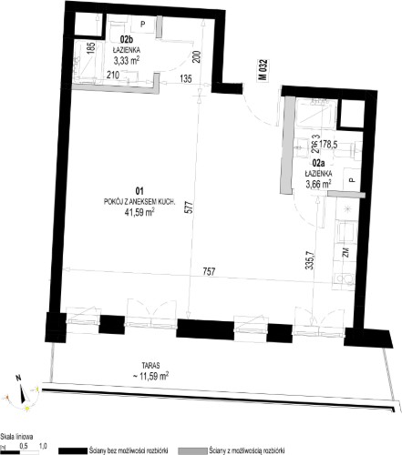
Powierzchnia 48,58 m2
Piętro 1 (Piętro I)
Pokoje 1
Taras ok. 11,59 m²
Całkowita cena brutto
553 812 PLN