cena Mieszkania

539 238 PLN

cena za metr kw.

11 100 PLN

Budynek Św. Rocha Bud.1
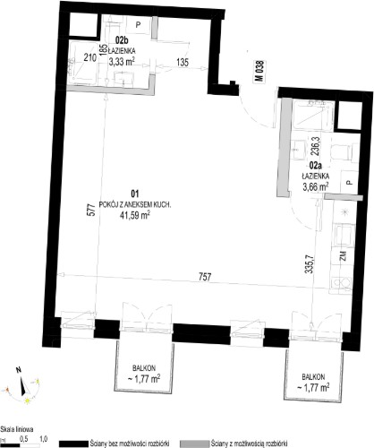
Powierzchnia 48,58 m2
Piętro 2 (Piętro II)
Pokoje 1
Balkon ok. 1,77 m²
Balkon ok. 1,77 m²
Całkowita cena brutto
539 238 PLN