cena Mieszkania

544 096 PLN

cena za metr kw.

11 200 PLN

Budynek Św. Rocha Bud.1
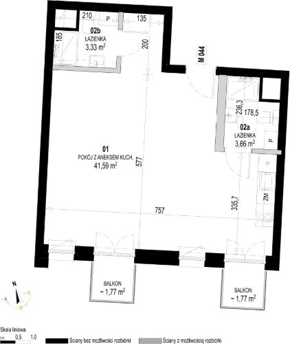
Powierzchnia 48,58 m2
Piętro 3 (Piętro III)
Pokoje 1
Balkon ok. 1,77 m²
Balkon ok. 1,77 m²
Całkowita cena brutto
544 096 PLN