cena Mieszkania

647 103 PLN

cena za metr kw.

12 300 PLN

Budynek Św. Rocha Bud.1
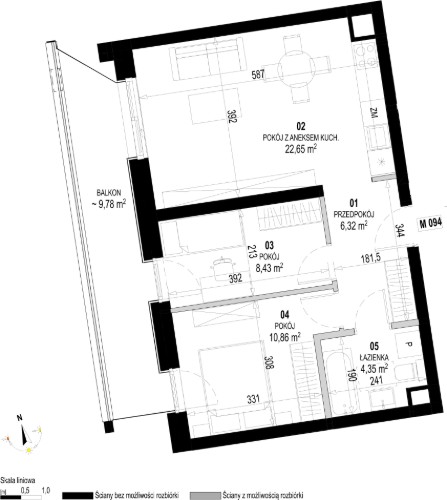
Powierzchnia 52,61 m2
Piętro 1 (Piętro I)
Pokoje 3
Balkon ok. 9,78 m²
Całkowita cena brutto
647 103 PLN