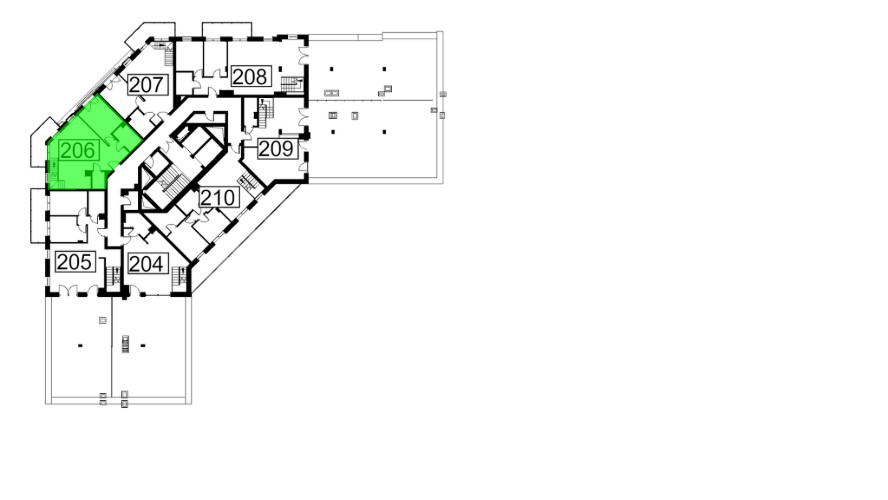
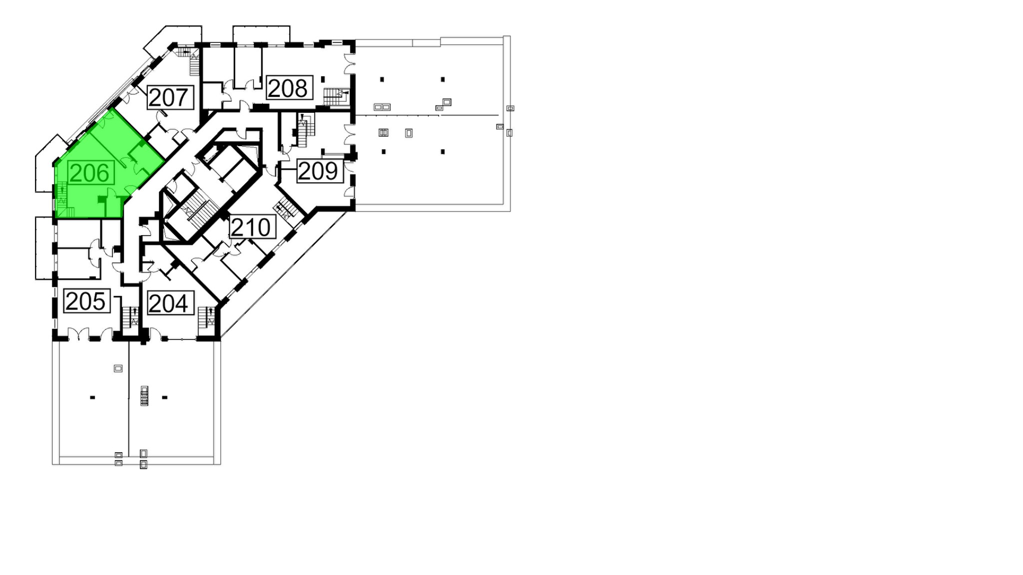
cena Mieszkania

1 457 546 PLN

cena za metr kw.

13 150 PLN

Budynek Młynowa bud. 1
Powierzchnia 110,84 m2
Piętro 8 (Piętro VIII)
Pokoje 3
Całkowita cena brutto
1 457 546 PLN