cena Mieszkania

1 484 954 PLN

cena za metr kw.

13 553 PLN

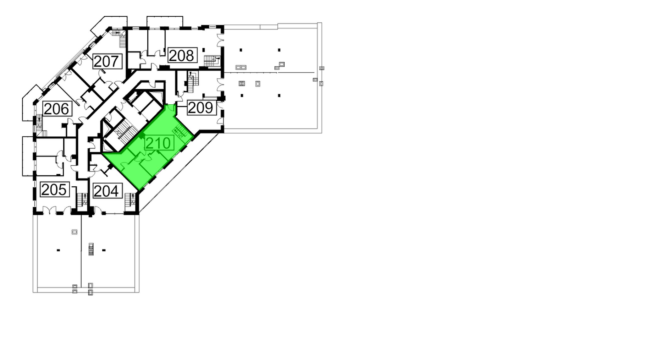
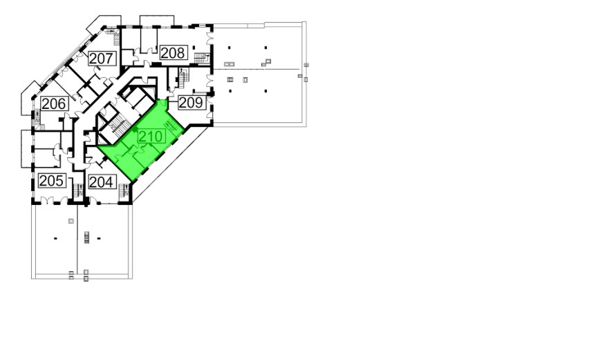
Budynek Młynowa bud. 1
Powierzchnia 109,57 m2
Piętro 8 (Piętro VIII)
Pokoje 4
Taras na dachu ok. 27,35 m²
Całkowita cena brutto
1 484 954 PLN