cena Mieszkania

1 000 386 PLN

cena za metr kw.

11 650 PLN

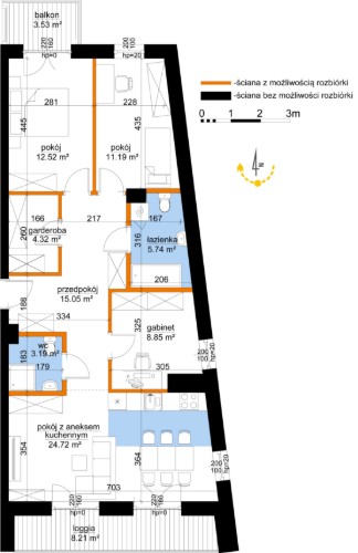
Budynek Młynowa bud. 1
Powierzchnia 85,87 m2
Piętro 2 (Piętro II)
Pokoje 4
Całkowita cena brutto
1 000 386 PLN