cena Mieszkania

665 098 PLN

cena za metr kw.

11 150 PLN

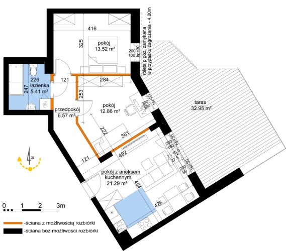
Budynek Młynowa bud. 1
Powierzchnia 59,65 m2
Piętro 1 (Piętro I)
Pokoje 3
Całkowita cena brutto
665 098 PLN