cena Mieszkania

811 463 PLN

cena za metr kw.

11 250 PLN

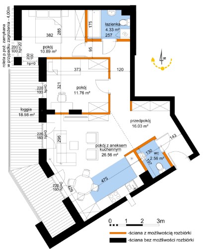
Budynek Młynowa bud. 1
Powierzchnia 72,13 m2
Piętro 2 (Piętro II)
Pokoje 3
Całkowita cena brutto
811 463 PLN