cena Mieszkania

834 025 PLN

cena za metr kw.

11 550 PLN

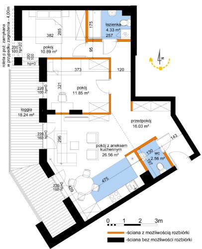
Budynek Młynowa bud. 1
Powierzchnia 72,21 m2
Piętro 5 (Piętro V)
Pokoje 3
Całkowita cena brutto
834 025 PLN