cena Mieszkania

841 246 PLN

cena za metr kw.

11 650 PLN

Budynek Młynowa bud. 1
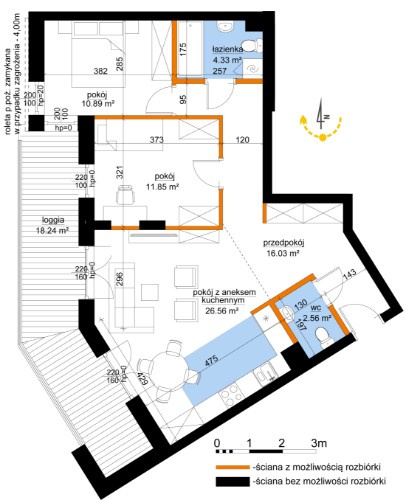
Powierzchnia 72,21 m2
Piętro 6 (Piętro VI)
Pokoje 3
Całkowita cena brutto
841 246 PLN