cena Mieszkania

1 649 500 PLN

cena za metr kw.

19 500 PLN

Budynek Szumu Drzew i Kwiatu Paproci K33-4
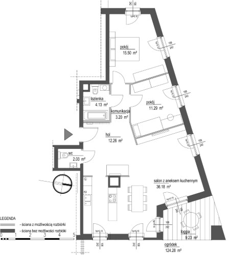
Powierzchnia 84,59 m2
Piętro 0 (Parter)
Pokoje 3
Ogródek ok. 124,28 m²
Całkowita cena brutto
1 649 500 PLN