cena Mieszkania

1 923 400 PLN

cena za metr kw.

20 000 PLN

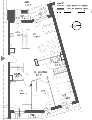
Budynek Szumu Drzew i Kwiatu Paproci K33-4
Powierzchnia 96,17 m2
Piętro 0 (Parter)
Pokoje 4
Ogródek ok. 57,95 m²
Całkowita cena brutto
1 923 400 PLN