cena Mieszkania

1 499 600 PLN

cena za metr kw.

21 000 PLN

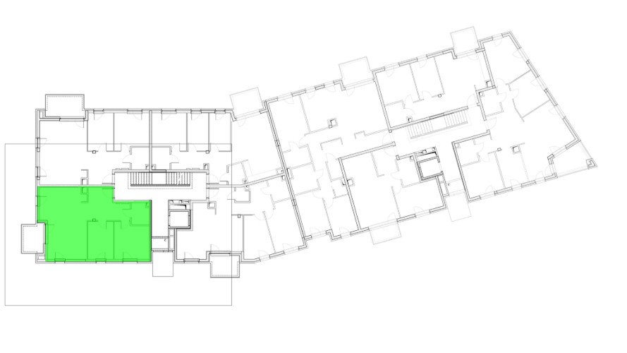
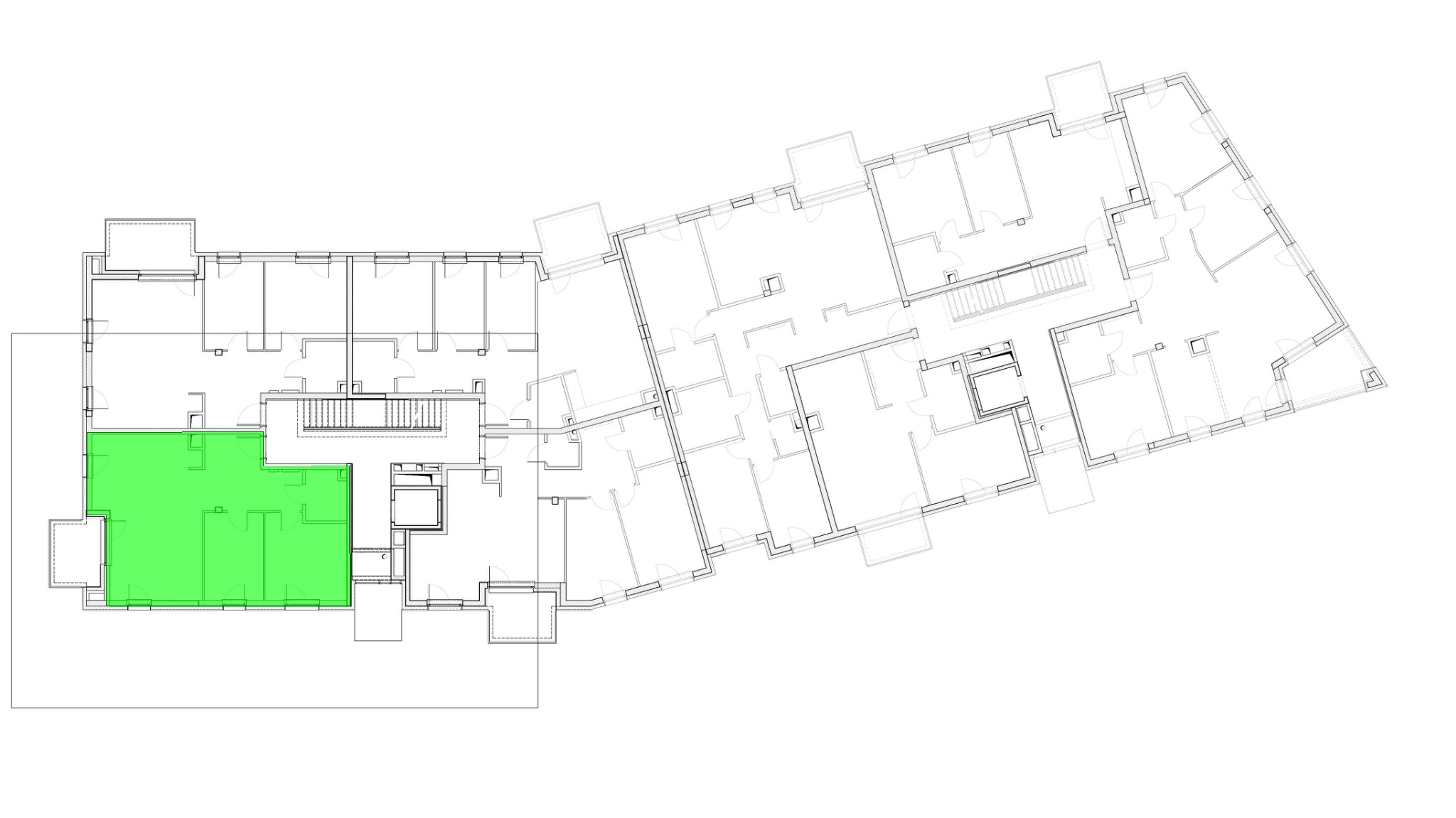
Budynek Szumu Drzew i Kwiatu Paproci K33-4
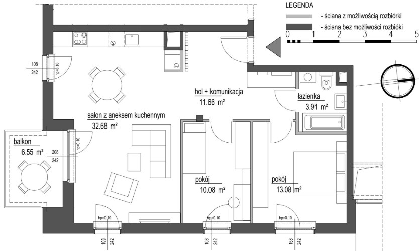
Powierzchnia 71,41 m2
Piętro 1 (Piętro I)
Pokoje 3
Całkowita cena brutto
1 499 600 PLN