cena Mieszkania

1 626 500 PLN

cena za metr kw.

22 999 PLN

Budynek Szumu Drzew i Kwiatu Paproci K33-4
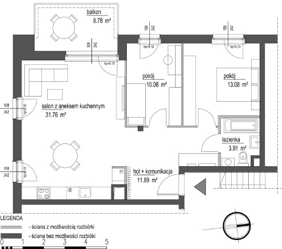
Powierzchnia 70,72 m2
Piętro 1 (Piętro I)
Pokoje 3
Całkowita cena brutto
1 626 500 PLN