cena Mieszkania

1 456 900 PLN

cena za metr kw.

20 999 PLN

Budynek Szumu Drzew i Kwiatu Paproci K33-4
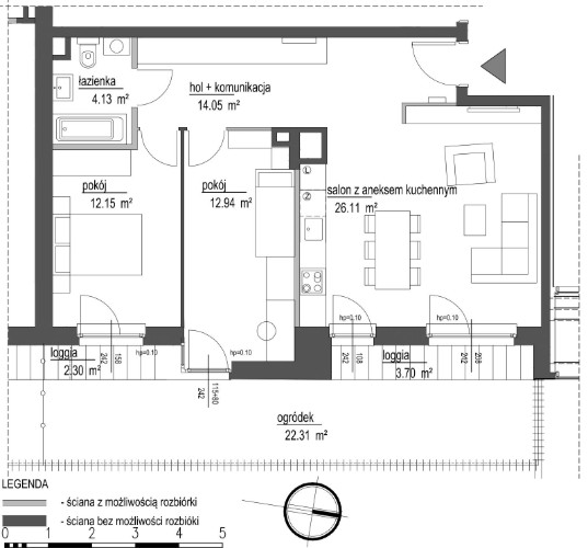
Powierzchnia 69,38 m2
Piętro 0 (Parter)
Pokoje 3
Ogródek ok. 22,31 m²
Całkowita cena brutto
1 456 900 PLN