cena Mieszkania

1 501 400 PLN

cena za metr kw.

20 199 PLN

Budynek Szumu Drzew i Kwiatu Paproci K33-4
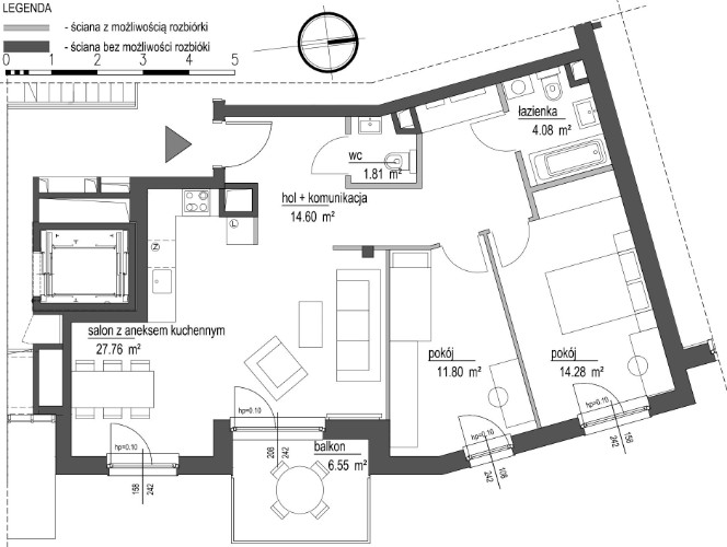
Powierzchnia 74,33 m2
Piętro 2 (Piętro II)
Pokoje 3
Całkowita cena brutto
1 501 400 PLN