cena Mieszkania

1 535 300 PLN

cena za metr kw.

21 500 PLN

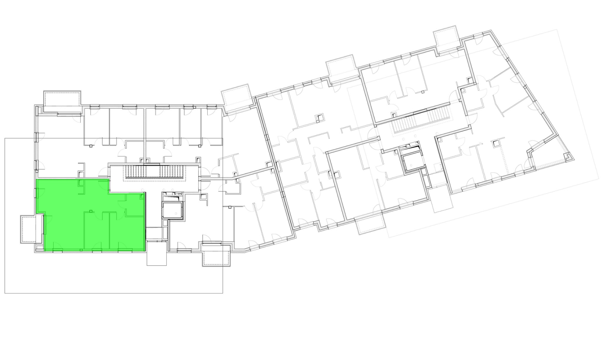
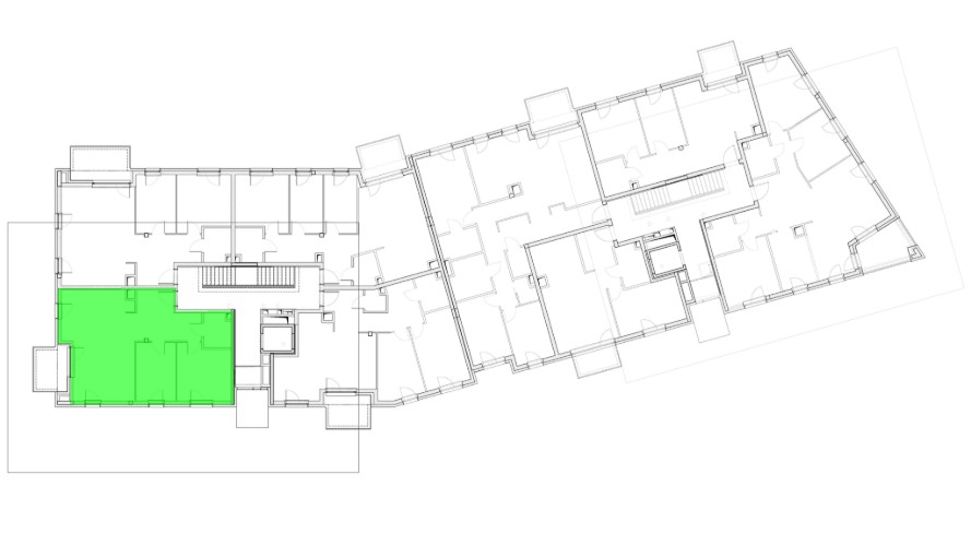
Budynek Szumu Drzew i Kwiatu Paproci K33-4
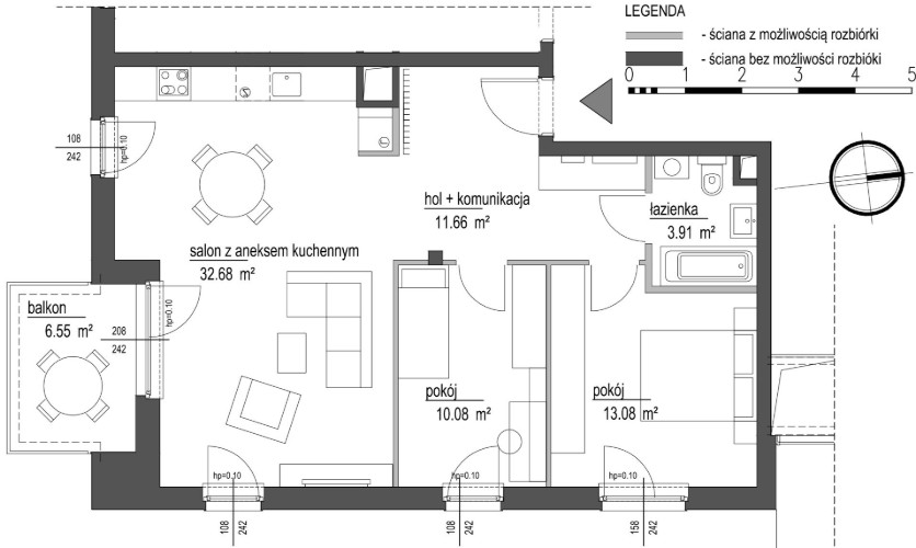
Powierzchnia 71,41 m2
Piętro 2 (Piętro II)
Pokoje 3
Całkowita cena brutto
1 535 300 PLN