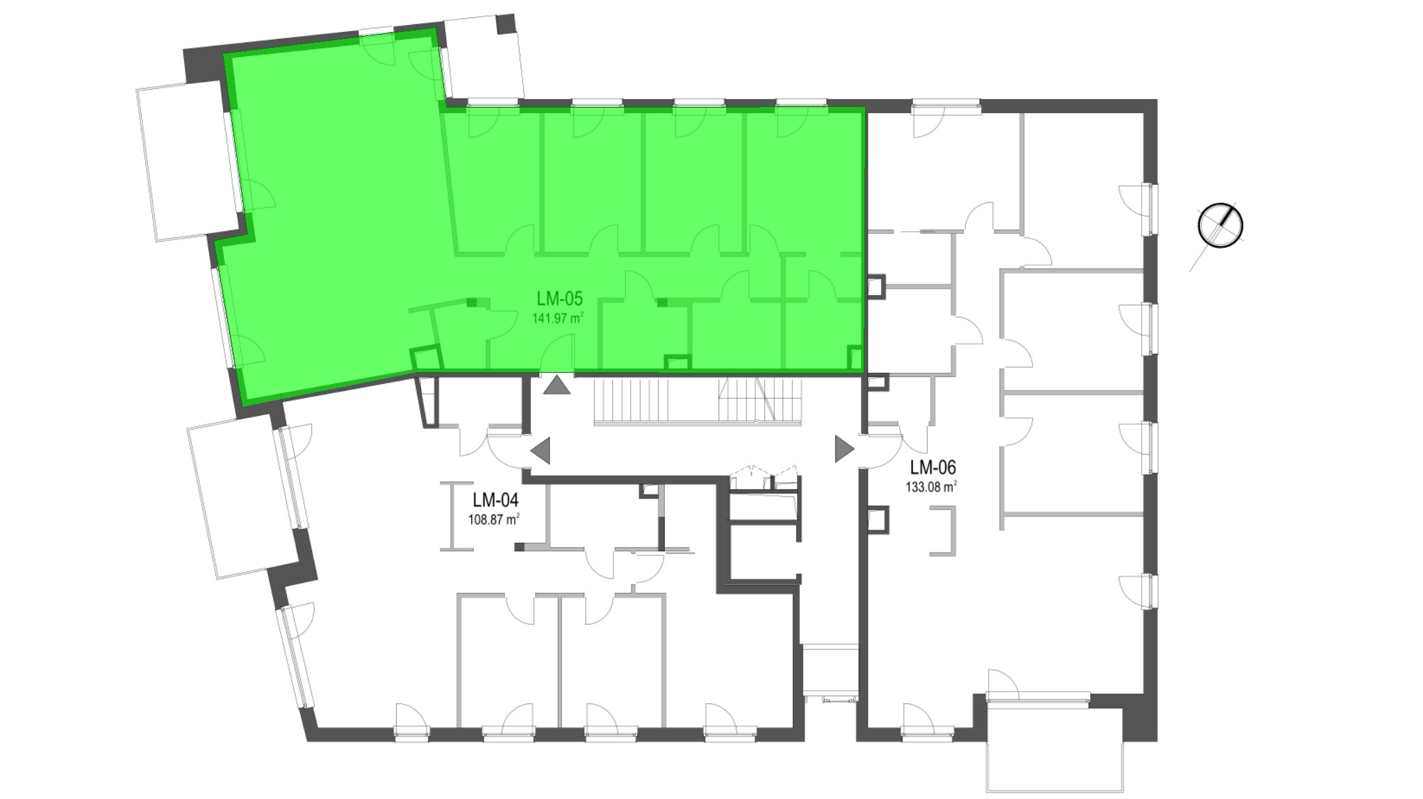
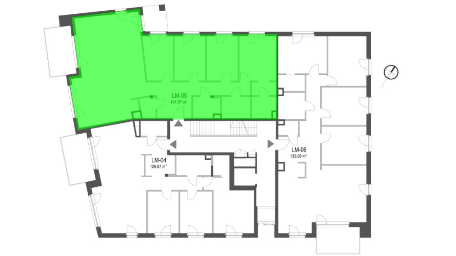
cena Mieszkania

3 549 250 PLN

cena za metr kw.

25 000 PLN

Budynek Szumu Drzew I Kwiatu Paproci K23 WM3
Powierzchnia 141,97 m2
Piętro 1 (Piętro I)
Pokoje 5
Całkowita cena brutto
3 549 250 PLN
Popup zamykający
Zamknij

Zostaw do siebie kontakt

Oświadczam, że zapoznałem się z polityką prywatności