cena Mieszkania

3 393 500 PLN

cena za metr kw.

25 500 PLN

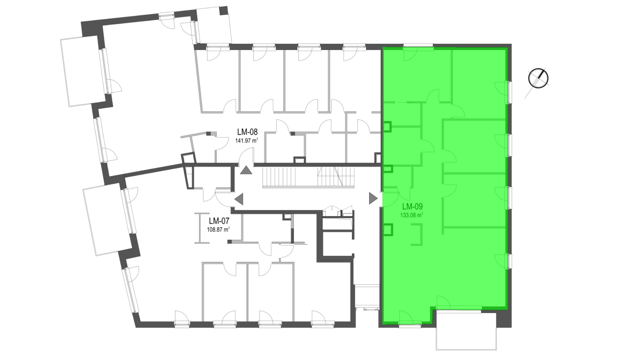
Budynek Szumu Drzew I Kwiatu Paproci K23 WM3
Powierzchnia 133,08 m2
Piętro 2 (Piętro II)
Pokoje 5
Całkowita cena brutto
3 393 500 PLN
Popup zamykający
Zamknij

Zostaw do siebie kontakt

Oświadczam, że zapoznałem się z polityką prywatności