cena Mieszkania

1 607 100 PLN

cena za metr kw.

22 499 PLN

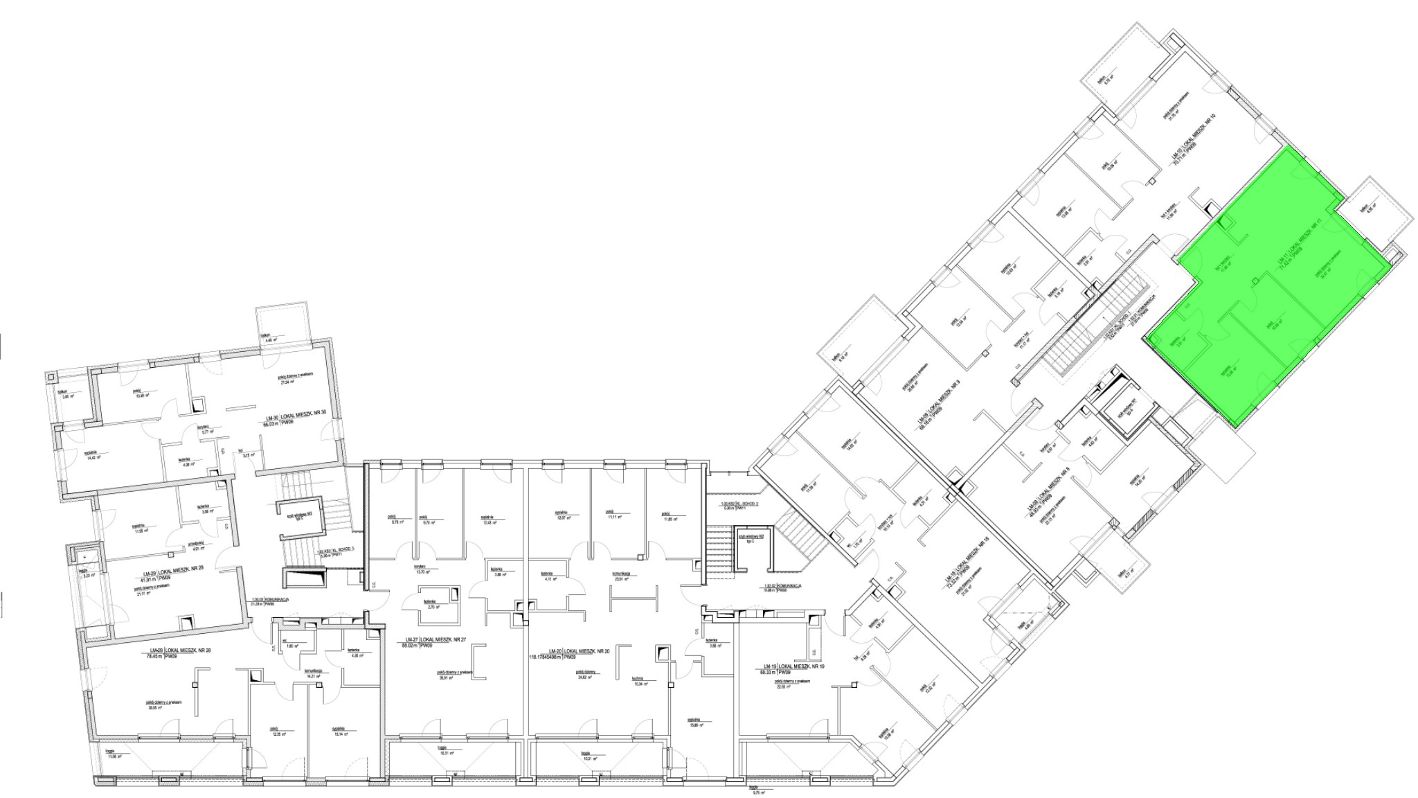
Budynek Szumu Drzew i Kwiatu Paproci K33-1
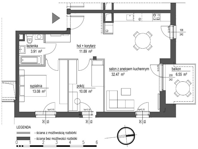
Powierzchnia 71,43 m2
Piętro 2 (Piętro II)
Pokoje 3
Całkowita cena brutto
1 607 100 PLN