cena Mieszkania

2 549 100 PLN

cena za metr kw.

20 499 PLN

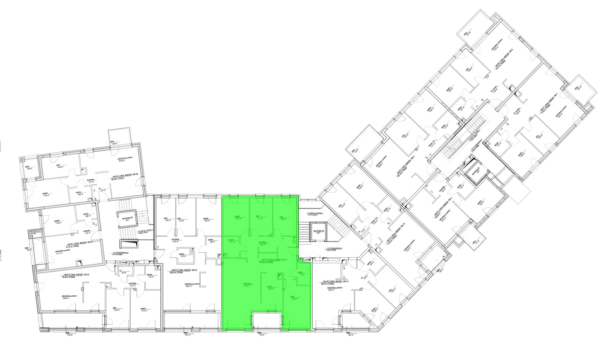
Budynek Szumu Drzew i Kwiatu Paproci K33-1
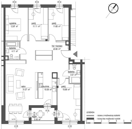
Powierzchnia 124,35 m2
Piętro 1 (Piętro I)
Pokoje 5
Całkowita cena brutto
2 549 100 PLN