cena Mieszkania

1 357 400 PLN

cena za metr kw.

22 500 PLN

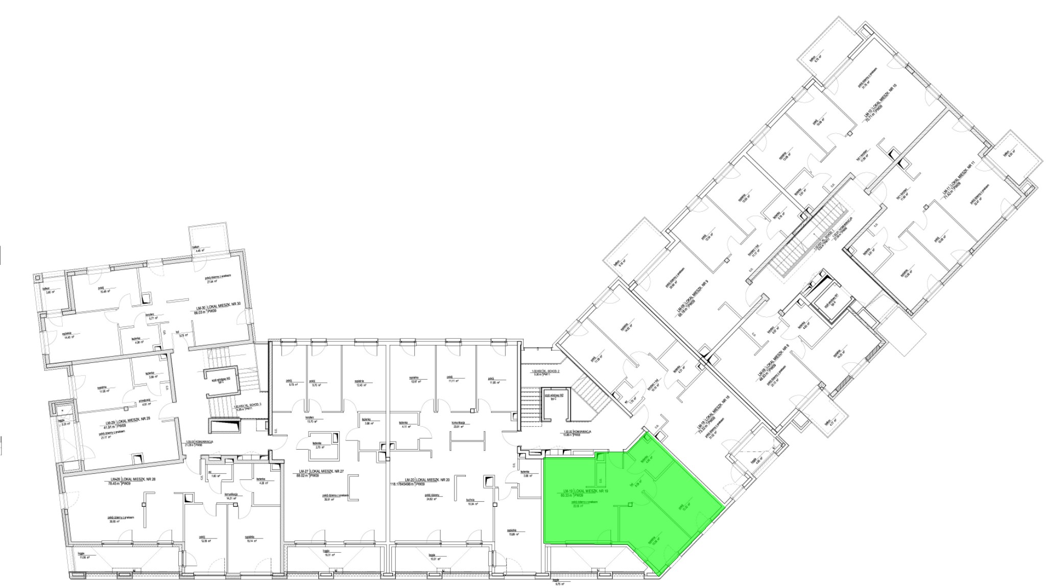
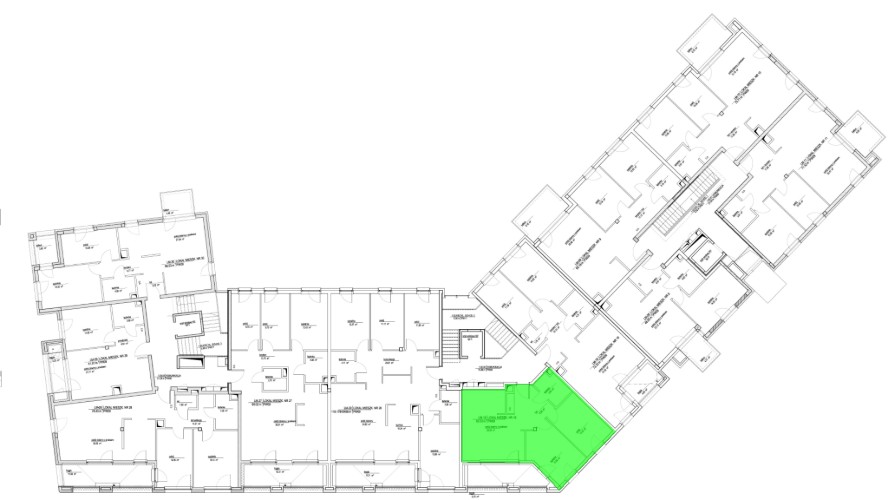
Budynek Szumu Drzew i Kwiatu Paproci K33-1
Powierzchnia 60,33 m2
Piętro 2 (Piętro II)
Pokoje 3
Całkowita cena brutto
1 357 400 PLN