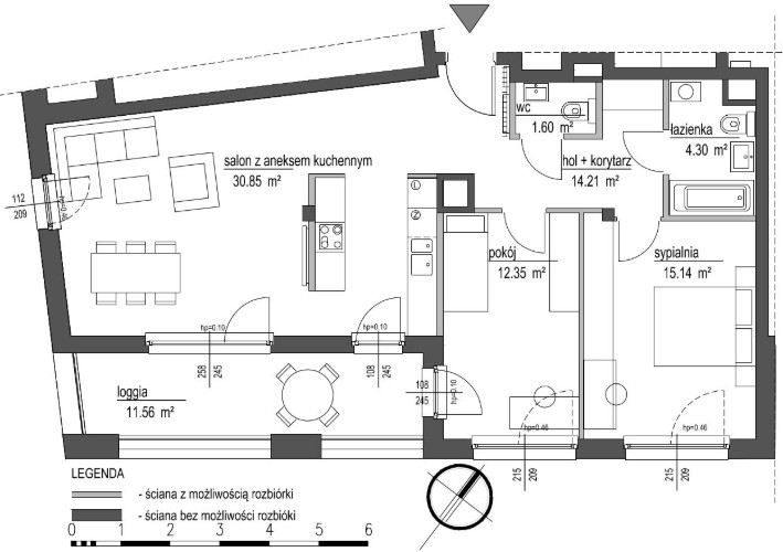
cena Mieszkania

1 725 900 PLN

cena za metr kw.

22 000 PLN

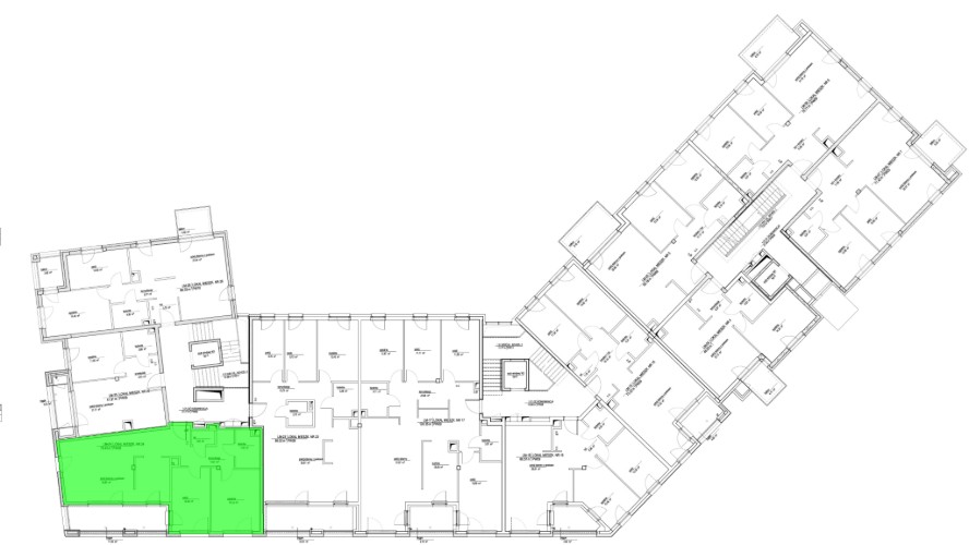
Budynek Szumu Drzew i Kwiatu Paproci K33-1
Powierzchnia 78,45 m2
Piętro 1 (Piętro I)
Pokoje 3
Całkowita cena brutto
1 725 900 PLN