cena Mieszkania

1 980 400 PLN

cena za metr kw.

22 499 PLN

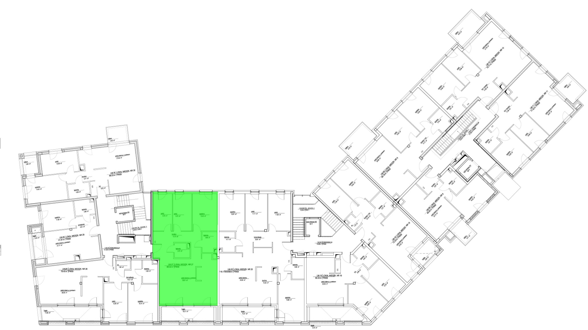
Budynek Szumu Drzew i Kwiatu Paproci K33-1
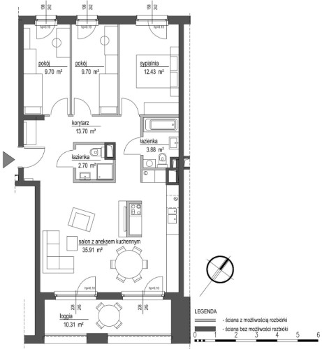
Powierzchnia 88,02 m2
Piętro 2 (Piętro II)
Pokoje 4
Całkowita cena brutto
1 980 400 PLN