cena Mieszkania

1 110 800 PLN

cena za metr kw.

26 498 PLN

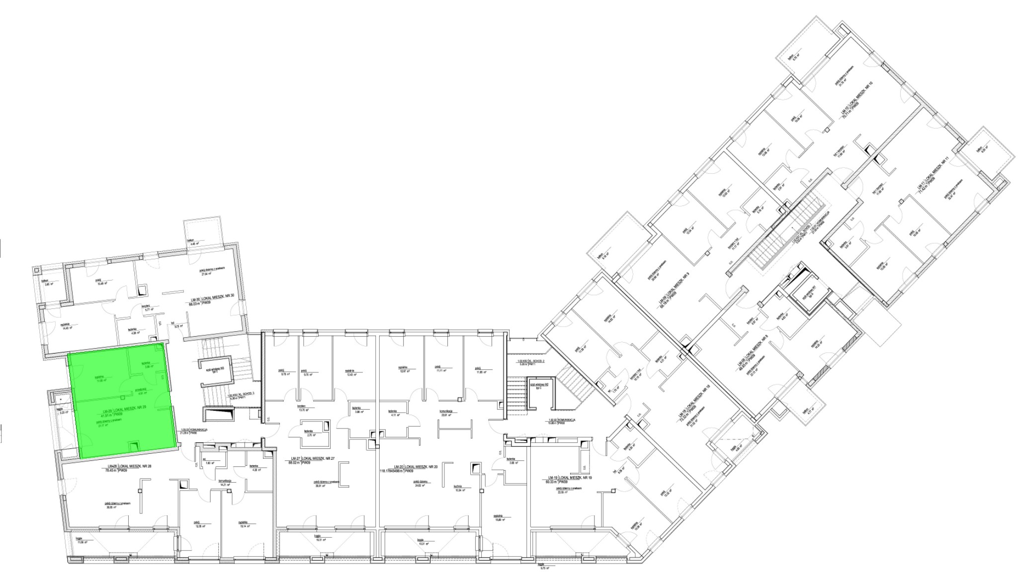
Budynek Szumu Drzew i Kwiatu Paproci K33-1
Powierzchnia 41,92 m2
Piętro 2 (Piętro II)
Pokoje 2
Całkowita cena brutto
1 110 800 PLN