cena Mieszkania

1 661 900 PLN

cena za metr kw.

23 500 PLN

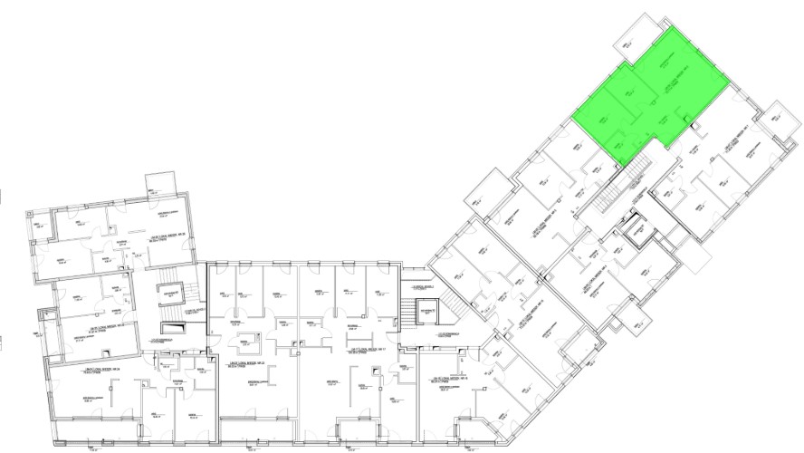
Budynek Szumu Drzew i Kwiatu Paproci K33-1
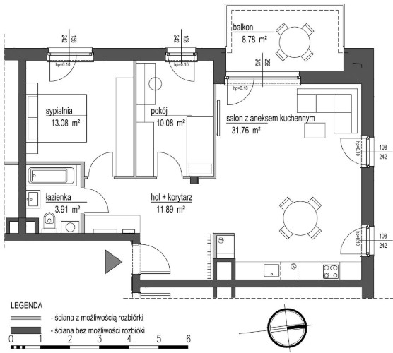
Powierzchnia 70,72 m2
Piętro 1 (Piętro I)
Pokoje 3
Całkowita cena brutto
1 661 900 PLN