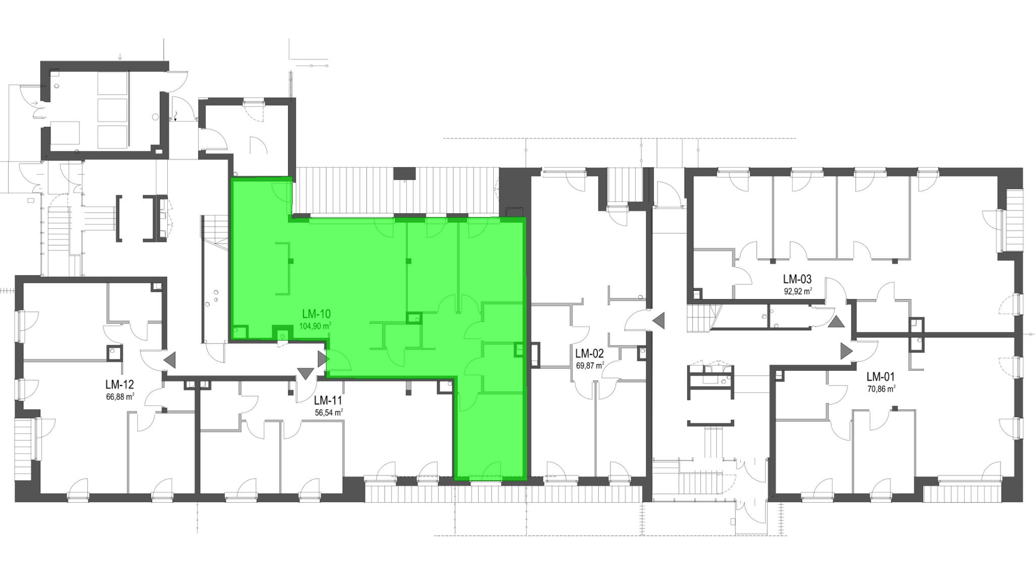
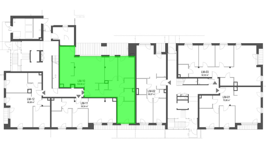
cena Mieszkania

2 181 920 PLN

cena za metr kw.

20 800 PLN

Budynek Szumu Drzew i Kwiatu Paproci K33-2
Powierzchnia 104,90 m2
Piętro 0 (Parter)
Pokoje 4
Całkowita cena brutto
2 181 920 PLN
Popup zamykający
Zamknij

Zostaw do siebie kontakt

Oświadczam, że zapoznałem się z polityką prywatności