cena Mieszkania

1 653 750 PLN

cena za metr kw.

25 000 PLN

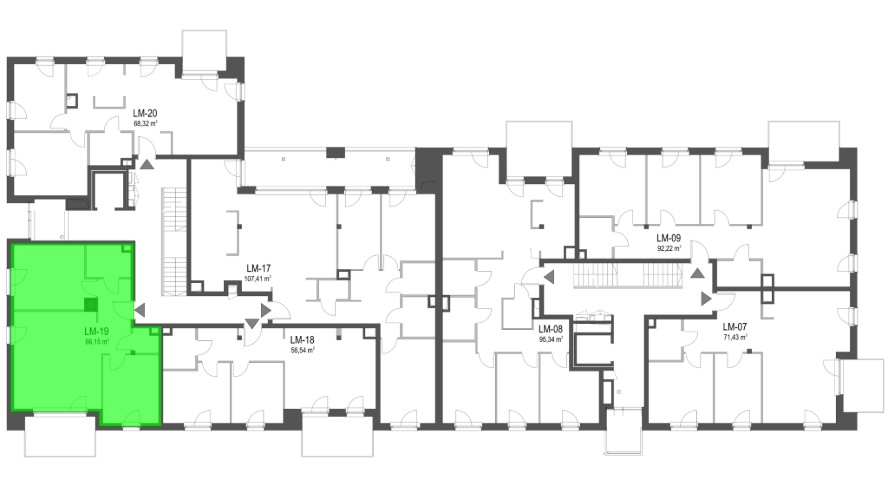
Budynek Szumu Drzew i Kwiatu Paproci K33-2
Powierzchnia 66,15 m2
Piętro 2 (Piętro II)
Pokoje 3
Całkowita cena brutto
1 653 750 PLN
Popup zamykający
Zamknij

Zostaw do siebie kontakt

Oświadczam, że zapoznałem się z polityką prywatności