cena Mieszkania

2 074 950 PLN

cena za metr kw.

22 500 PLN

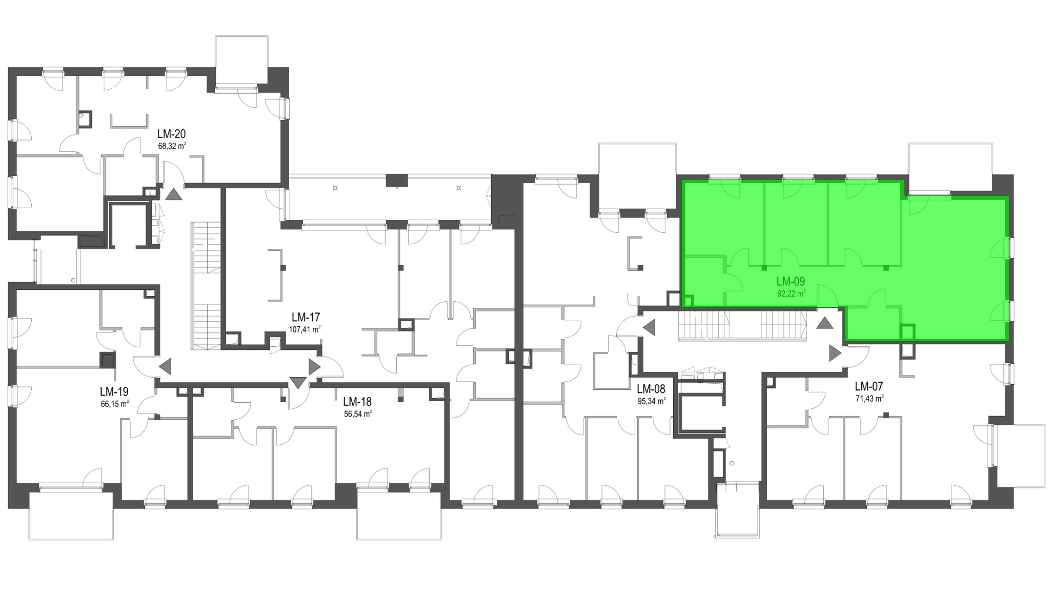
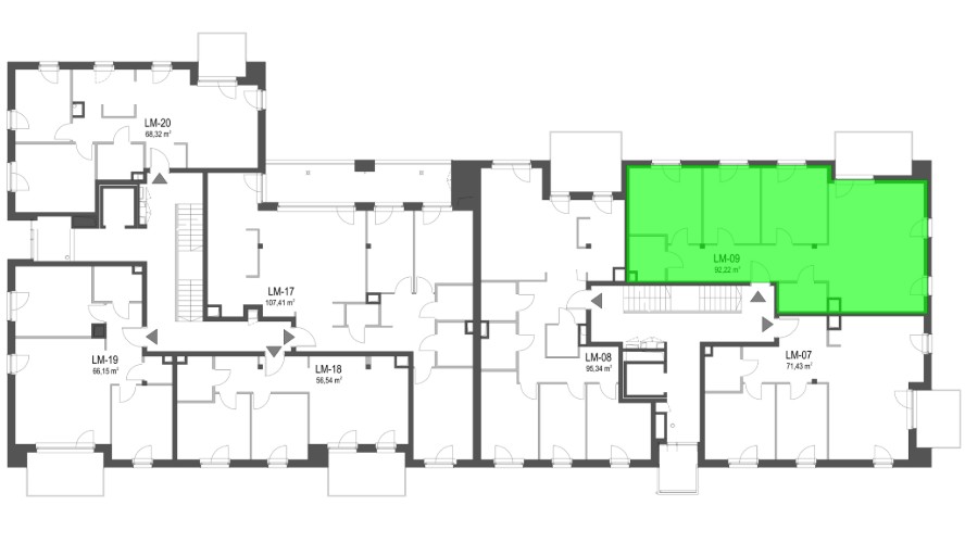
Budynek Szumu Drzew i Kwiatu Paproci K33-2
Powierzchnia 92,22 m2
Piętro 2 (Piętro II)
Pokoje 4
Całkowita cena brutto
2 074 950 PLN
Popup zamykający
Zamknij

Zostaw do siebie kontakt

Oświadczam, że zapoznałem się z polityką prywatności