cena Mieszkania

2 297 100 PLN

cena za metr kw.

26 000 PLN

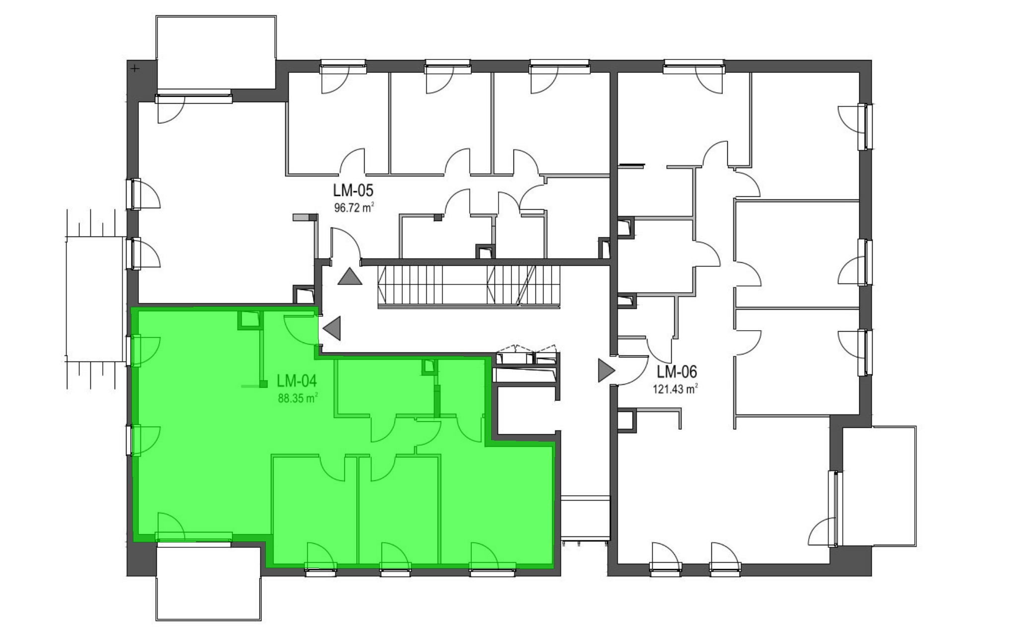
Budynek Szumu Drzew i Kwiatu Paproci WM1
Powierzchnia 88,35 m2
Piętro 1 (Piętro I)
Pokoje 4
Całkowita cena brutto
2 297 100 PLN
Popup zamykający
Zamknij

Zostaw do siebie kontakt

Oświadczam, że zapoznałem się z polityką prywatności