cena Mieszkania

2 341 275 PLN

cena za metr kw.

26 500 PLN

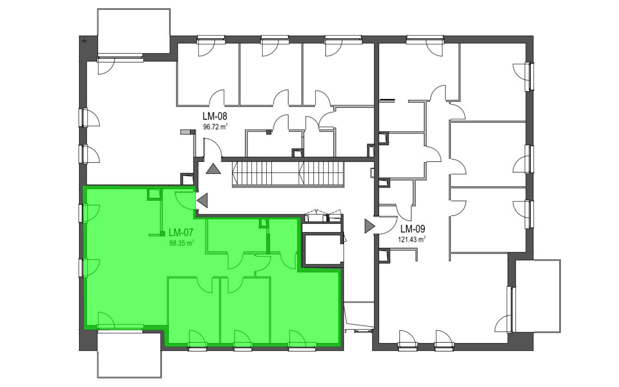
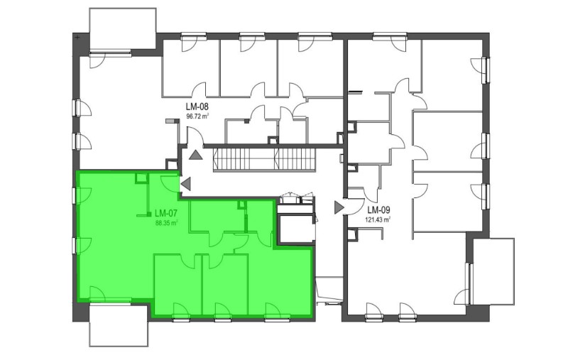
Budynek Szumu Drzew i Kwiatu Paproci WM1
Powierzchnia 88,35 m2
Piętro 2 (Piętro II)
Pokoje 4
Całkowita cena brutto
2 341 275 PLN
Popup zamykający
Zamknij

Zostaw do siebie kontakt

Oświadczam, że zapoznałem się z polityką prywatności