cena Mieszkania

3 096 465 PLN

cena za metr kw.

25 500 PLN

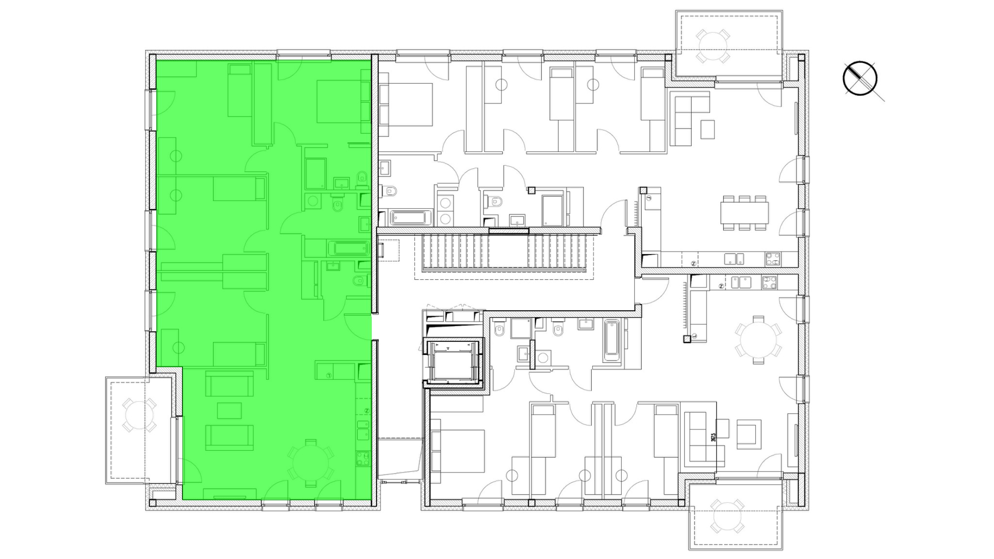
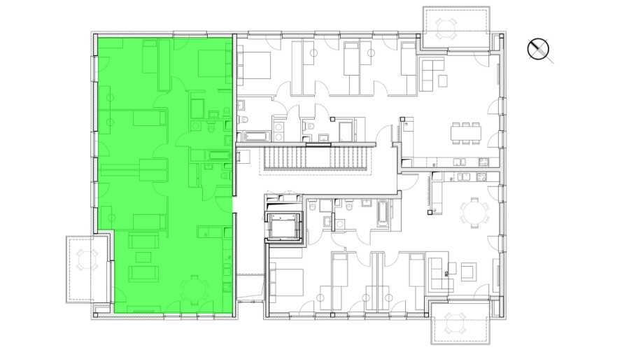
Budynek Szumu Drzew i Kwiatu Paproci WM2
Powierzchnia 121,43 m2
Piętro 2 (Piętro II)
Pokoje 5
Całkowita cena brutto
3 096 465 PLN